• Vanaf €283,900
Santa Rosalia, Murcia
Nieuwbouw

Luxe appartementen in het unieke Santa Rosalía Lake resort

Santa Rosalia, Murcia
  • Vanaf €283,900

Overzicht

Pand ID: 3084-OB
  • Appartement, Penthouse
  • Pand Type
  • 3
  • Kamers
  • 2
  • Badkamers
  • 4
  • Afstand strand (Km)
  • 30
  • Afstand vliegveld (Km)

Beschrijving

Nieuwe ontwikkeling binnen het Santa Rosalía Lake resort

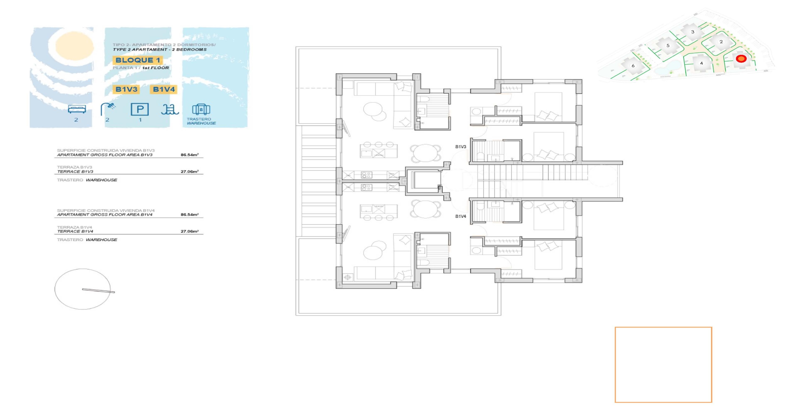
Deze mooie residentie bestaat uit 42 appartementen verdeeld over 6 blokken van 7 appartementen. Er is keuze uit 2 of 3 slaapkamers, telkens met 2 badkamers, terras van min. 25 m2 en prachtig zicht op het meer van dit luxeresort.

Naast een terras van 25 m2 beschikken de penthouses over een mooi dakterras van 39 m2, en de gelijkvloersappartementen over een gezellige terrastuin van 74 tot 141 m2.

Details

  • Pand ID: 3084-OB
  • Prijs: Vanaf €283,900
  • Kamers: 3
  • Badkamers: 2
  • Bouwjaar: 2023
  • Pand Type: Appartement, Penthouse
  • Pand Status: Nieuwbouw
  • Afstand strand (Km): 4
  • Afstand Stad (Km): 2
  • Afstand vliegveld (Km): 30

Kenmerken

Compare listings

Compare
Kelly De Plecker
  • Kelly De Plecker